Broadland Architectural offer a wide range of architectural design services, for a varied client base, working to provide a cost-effective, yet professional service, to assist in achieving the desired design and development outcome.


Providing a Cost-effective, Professional Range of Design Services

Planning Permission Home Page Building Regulations Projects Gallery Contact Us


Below is a number of examples of smaller scale extensions, which encompass a large part of our work. Whether you require a small single room extension, which may be undertaken under Permitted Development, yet still require plans, or a slightly larger small extension, which must comply with Planning & Building Regulations approval, you can be assured your development will receive our best attention.


Small Extensions & Minor Developments

Small extensions are a major part of our work, whether it is a small single storey extension, to enable the owner to create a larger Lounge, possibly to better enjoy the garden, or to design and develop a Kitchen / Diner extension, for a modern, open plan lifestyle, or simply to provide an addition spare Bedroom, Home Office, or just storage space, a small extension is a great way of adding additional room to your home, and often value to your property.

Some smaller extensions may be exempt from formal Planning Approval and can be submitted under Permitted Development, but may still require some design input, either to ensure the best design is achieved, or in order to ensure the development complies with the latest Building Regulations, as is usually required for a habitable room.

If you’re considering a small extension, and would like some advice, please don’t hesitate to contact us.

Below are a couple of smaller extension developments to provide you with ‘Food for Thought.’.


Contemporary Single-storey Extension to Period Riverside Dwelling


Although the extension to this property appears a ‘Grand Design,’ in theory it was a single-storey rear extension. The fact it was to a unique, historic riverside dwelling in Wroxham, with issues raised by The Broads Authority, and the building’s character and style added a few complications.


This stunning house was built in 1898, and since then many things have changed. The position and size of the existing Kitchen and adjoining Drawing Room were poor in relation to the amazing river views and stunning terraced garden. Thus, a serious re-design was required to enable these to be fully enjoyed.

After lengthy discussions between ourselves, the client and liasing with The Broads Authority, and in association with Structural Engineers, this stunning modern / Contemporary design was created. The single-storey extension, with large sliding glass doors, opens out onto a raised Patio area, with terraced steps linking down to the gardens, which in turn sweep down to the river some 150 yards beyond.


The design required a tapered flat-roof, to ensure a slim style, and to maximise the glass aspects of the design. Key large areas of wall were retained to enable the client to hang artwork inside and ensure a new open-plan Kitchen and Dayroom with roof windows to provide light and offer a wide open feeling. In all, an out-standing project which although utilising a mix of traditional and modern styles, resulted in a unique and stunning property becoming outstanding.

Existing & Proposed Views


Rear Elevations


Side Elevations

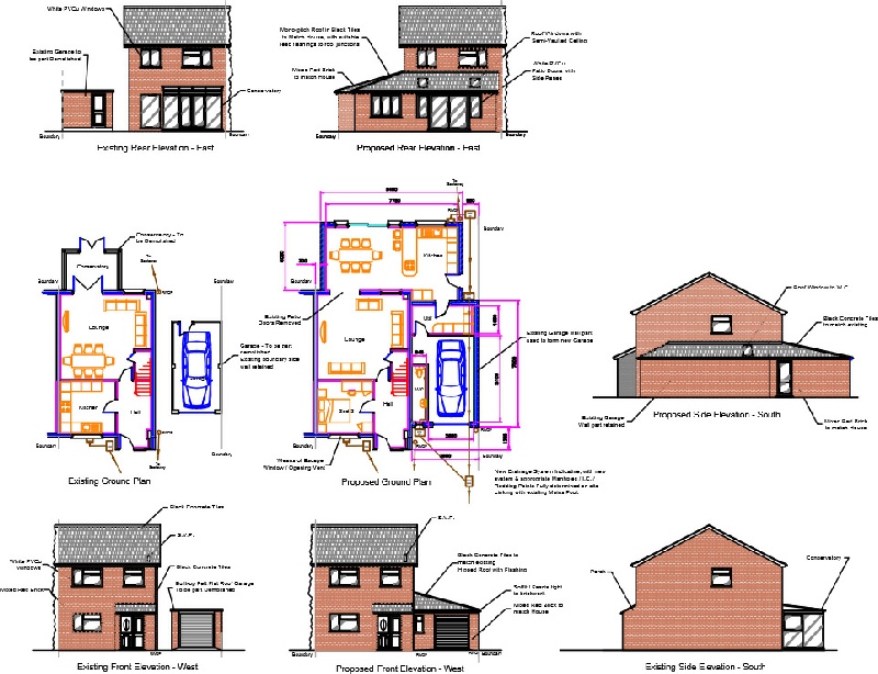
Open-plan Living - Single-storey Extension to Family Dwelling


The client for this property in Horsford wanted an additional downstairs W.C. and improved open-plan Dinning / Kitchen facilities, and ideally a Utility Room. A existing Garage was also to be retained in some form and a tight plot meant a side and rear extension with low-pitched roof would be the ideal solution.  


The new Garage and W.C. was integrated within the design, linking to a new Utility Room which in turn linked onto the new open-plan Kitchen / Diner, whilst also providing side access. A low-pitched tilled roof, with semi-vaulted ceiling and roof windows, ensured light flowed through to the existing Lounge area and ensured the whole design was light and airy, with a modern, open-plan appeal. A great design, providing all the clients needs..


The idea was to create the extension as being a period part of the dwelling, with a low-pitched ‘metal’ roof, but add a modern twist, with walls of glass. After many design options were considered, and much discussion with the client and Planning, a unique design, was agreed, creating a ‘Tardis’ effect.


Entering the cottage from the front, you duck beneath traditional low oak beams, to then suddenly enter a massive, open-plan Kitchen / Diner / Lounge area, with stunning views across the marshes. The inclusion of a Master Bedroom, always looking across the meadows added the cherry on the top.


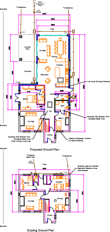
‘Modern meets Traditional’ - Single-storey Extension to Period Broadland Dwelling


The basis of this unique project was the stunning, two-hundred year old thatched cottage, which sat on open meadows and marshes in Panxworth. The brief was to transform a tiny ‘Keepers Cottage’ into a modern family dwelling, but importantly, to not destroy the period styling and outstanding view as you arrived down the long drive.


In addition, the side of the property, currently with no windows, had stunning views across open meadows and marshland from the rear patio and garden area. A unique extension was to be created, which offered these stunning views on a daily basis, but ensured the key features of the existing pink-rendered, thatched cottage were retained.

Traditional Flat-Roof / Lantern Light Extension to Modern Home


This simple extension, to a modern property on a newly developed estate in Rackheath, shows how a straight-forward ‘three-walled’ extension can add extra space and style, and totally transform a standard family home. The client wanted improved Kitchen and Dinning facilities, which were tight, to a property set in a slightly restrictive plot. Windows centrally to the rear restricted a pitched roof and limited options.


After providing design options to the client, their preference was for a traditional style flat-roof, but in a parapet wall design (which hides the roof edge) with a centrally positioned Lantern Light. This ensures light floods down into the roof and provides stunning sky views within. Twin Bi-fold Doors set off this simple, but highly effective extension, offers great access to the garden, to satisfy the clients needs and transform an ordinary property.


The example below is another example of the above Flat-roof / Lantern Light design, but set onto a traditional Barn Conversion, and designed to replace a cold and dated PVCu Conservatory.


This shows a simple, flat-roof extension works with both modern and period developments.