Broadland Architectural offer a wide range of architectural design services, for a varied client base, working to provide a cost-effective, yet professional service, to assist in achieving the desired design and development outcome.


Providing a Cost-effective, Professional Range of Design Services

Planning Permission Home Page Building Regulations Projects Gallery Contact Us


Broadland Architectural have a reputation for working on a wide variety of riverside developments, having knowledge of the complexities involved in working in such a key area, along with experience in liasing with the main authorities such as The Broads Authority. Projects can be as simple, such as installing new quayheadings, to complex, such as producing brand new riverside dwelling, commercial boatyard or hospitality property.

If you have a riverside property, which requires some design or planning involvement, please give us a call.


Riverside Developments

Thatched Replacement Dwelling Proposal in Horning


The following is a proposed replacement dwelling on a key riverside plot in Horning in traditional Norfolk Reed.

 As the plot had water on three sides, with stunning views across to marshes over the river, the design was created to make best use of the views with windows on all aspects, whilst mixing traditional thatch with a modern design.

The first floor room provides stunning views, whilst the slim design works well with the slightly restrictive plot, one of the many challenges riverside dwellings pose. A stunning design aimed to create a landmark property on the river.


These are simply a selection of the many various riverside developments we’ve undertaken.


If you need advice on any Riverside development or project no matter how large or small, don’t  hesitate to gives us a call on 01603 720148 or e-mail to: mail@house-plan.co.uk and we’ll be happy to help.

Other Services

Below are examples of just some the various riverside developments Broadland Architectural have designed and undertaken, having good knowledge of the various aspects involved in working in what can be a complex and intimidating area of development. These projects can be demanding, usually working within restricted plots and in ensuring compliance with strict Planning rules and regulations, often being within Conservation areas, where historical knowledge is required, or with specific issues, such as requiring Flood Risk Assessments to undertake.

However, their projects can be very rewarding, producing stunning properties for not only the owner to enjoy, but also which can be admired by river travellers, who appreciate the grand designs which line our local riverbanks.

Below are a few of our key riverside developments to highlight the type of projects we .

New Four-Bedroom Riverside Dwelling in Horning


This is a new riverside property, to replace an out-dated single-storey dwelling, on a prestigious riverside plot in Horning. The design was a combination of achieving the needs of the owner; where good river views in a building designed in a combination of traditional and modern were key, whilst working with The Broads Authority, to ensure the design complimented the landmark neighbouring properties and then naturally blended in with the existing properties lining this popular area of The Broads,

The design provided a large open-plan style Lounge / Dining area, with large adjoining Kitchen, all with great river views.

The first floor provided three bedrooms, with the master Bedroom having a stunning river view with balcony.

 A large new Garage / Workshop was also part of the design / application, along with modified access, which were again key.

 The result is an out-standing new riverside dwelling which it is hoped will provide joy for the owners and those drifting past on the river, where admiring the houses along the riverbank is part of the Broads experience.

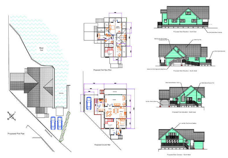
Replacement Three-bedroom Dwelling in Hoveton


The following is a three-bedroomed replacement dwelling approved to replace a single-storey riverside dwelling. Again there were a variety of issues, including working on a restrictive plot in a popular area in Hoveton. The original property was a quaint, traditional, single-storey dwelling, which had been on the site for many years, serving it’s owners well, but in need of modernising. The final design created another stunning proposed replacement dwelling, providing great views to the river cut and key features, such a Mezzanine Snug area to the first floor. Another great project to work on.

New Three-bedroom Dwelling in Horning


The following is a brand dwelling on a vacant riverside plot in Horning on The River Bure.

New, vacant plots to build on along the river are very rare, and this one came along with great potential, but again with it’s various issues and challenges.

Only a single-storey development could be permitted due to the existing buildings in the locality and tree surveys were required due to existing trees with TPO’s in place. In addition, the plot was narrow and restrictive and build-line, due to key positions of neighbouring properties and the bend in the river, all determined the design and building location within the plot.

Typical complications involved with riverside properties, which make them challenging , but enjoyable and where Broadland Architectural’s experience helped ensure the development was approved and produced another stunning property on the river.